PROGETTI > INTERVENTI SUL COSTRUITO

AMPLIAMENTO E MANUTENZIONE STRAORDINARIA

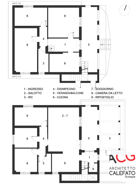
La villa in oggetto è situata in Contrada Titolo, una zona collinare di villeggiatura al confine tra il comune di Mola di Bari (Ba) e quello di Noicattaro (Ba); è costituita da due piani fuori terra (rialzato e primo) completi rispettivamente di un’ampia veranda coperta ed di un grande terrazzo scoperto oltre che di una pertinenza piuttosto estesa. La committenza ha da subito lasciato libera interpretazione dei luoghi di progetto fissando come scopo dell’intera operazione la destinazione dell’immobile a casa per le vacanze in grado, quindi, di accogliere un considerevole numero di ospiti nelle serate all’aperto ed una buona quantità di ospiti per la notte. Il progetto cerca di ampliare il manufatto esistente migliorando l’illuminazione naturale degli ambienti interni ed esaltando il rapporto con l’ampio giardino pertinenziale; al contempo è stata progettata una zona giorno “aperta” comprensiva di soggiorno, cucina e salotto. Per gli spazi esterni si è progettato l’ampliamento della veranda esistente mediante un ampio pergolato, l’allestimento di un giardino con piscina, di un campo da calcetto e di un’area di parcheggio separata dalla parte restante della proprietà. Al piano terra la zona giorno si apre immediatamente sull’ingresso con l’ambiente unico adibito a salotto - soggiorno e l’ampia cucina subito sulla sinistra; mediante il disimpegno si ha accesso alla zona notte, costituita da tre camere da letto e da un bagno. Il primo piano è stato strutturato in maniera tale che, all’occorrenza, possa configurarsi come una dependance per gli ospiti; vi si accede mediante la scala esistente recuperata e opportunamente integrata nel nuovo edificio, e che conduce in una piccola cucina ed un soggiorno che disimpegna in un’ampia camera da letto ed un bagno e che consente l’ accesso ad un ampio terrazzo dotato di cucina e forno all’aperto oltre che di un ampio pergolato. Il progetto cerca di sviluppare le caratteristiche materiche peculiari delle ville storiche presenti nella zona reinterpretando gli stessi materiali con un linguaggio più contemporaneo. I materiali utilizzati sono stati: il gres per tutti i pavimenti interni ed esterni, il gres per i rivestimenti interni, la pietra di Trani lavorata all’incerto per il rivestimento di parte del prospetto e per le aiuole all’aperto, il legno di noce per le porte, l’alluminio per gli infissi e le tapparelle, il vetro, l’alluminio spazzolato, ecc.